Croix
RollAppartement Bayonne, 2022

Cet appartement traversant est situé dans un immeuble datant des années 1920 au cœur du quartier de Saint-Esprit à Bayonne. L’intervention vise tout d’abord à dévoiler le potentiel du volume en opérant une mise à nu intégrale et en reconfigurant l’espace de manière plus lisible et radicale.

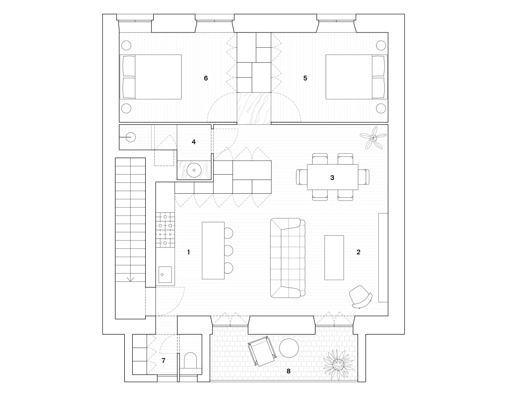
Un seule cloison est créée selon un axe est-ouest de façon à diviser l’espace en deux bandes fonctionnelles. La première, orientée au nord, est intime et abrite deux chambres communicantes ainsi qu’une salle de bain. La seconde est une vaste pièce de vie modulable organisée autour d’un rangement central et tournée vers une terrasse côté sud.

Plan projet : 1 Cuisine|2 Salon|3 Coin repas|4 Salle de bain|5 & 6 Chambres|7 Buanderie / sanitaire|8 Terrasse

Plan de l'existant

Deux objets sont insérés dans cet espace : une cuisine comparable à un totem donnant une polarité à la pièce et un grand meuble de rangement offrant une transition douce vers les espaces de nuit plus intimes. Une palette de matériaux et de couleurs soigneusement choisis est appliquée dans les différentes pièces de manière ludique et ad hoc.

Les deux chambres, aux proportions identiques, sont séparées par une paroi épaisse intégrant des rangements toute hauteur de part et d’autre, ainsi que le dégagement qui permet d’y accéder. Ce passage est souligné au sol par une dalle de marbre vert, qui en matérialise le seuil.

À l’exception du grand meuble de rangement autour duquel s'enroulent les pièces de vie, le séjour est volontairement laissé libre afin d’offrir une grande flexibilité d’usage et de permettre d’éventuelles reconfigurations selon l’évolution des besoins.

Client
Privé
Lieu
Bayonne, France
Programme
Appartement
Surface
73 m2
Statut
Livré 2022
Crédit photo
© Sandrine Iratcabal
Related projects
Boulangerie Okindegia
Bibliothèque du RAM
Maison Labenne